Logo

Hoe kunnen we u helpen? šŸ‘‹

Vind stapsgewijze handleidingen, tips voor probleemoplossing en functie-uitleg om het meeste uit ons platform te halen.

Punten delen met partijen zonder ArchiSnapper account

Samenwerken in ArchiSnapper

Punten delen met partijen zonder ArchiSnapper account

Real-time overzicht van punten delen met externe partijen

Laatst bijgewerkt op 22 Feb, 2021

Je kan vanuit je online account een lijst van punten delen met betrokken partijen. Zij hebben geen ArchiSnapper account nodig om deze lijst te raadplegen.

Filter via de "alle opmerkingen" tabel

  1. Navigeer naar de "alle opmerkingen" tabel in je online account.

  2. Filter de lijst van punten die je wilt bekomen. Je kan bv filteren op alle punten met status NIET OK, toegewezen aan partij X.

  3. Klik op "zoeken".

Image

TIP: Sorteer deze lijst volgens jouw eigen voorkeur via de "sorteren en groeperen" optie.


Deel de lijst van gefilterde punten

Je kan deze lijst nu delen op 3 manieren.

Image

1. In de vorm van een PDF verslag

  • Bepaal zelf welke lay-out template je wil gebruiken.

  • Download de PDF met de opmerkingen, en deel hem.

2. Op een grondplan

  • Download het PDF bestand van het grondplan inclusief genummerde opmerkingen.

  • Deel het PDF bestand met betrokken partijen.

  • Contacten die de PDF openen en doorklikken op de genummerde locatie pointers zien extra info over dat punt.

Image

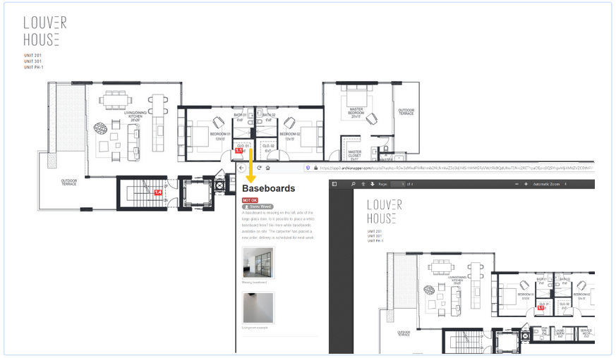
3. Deel een link met real-time overzicht

  • Verstuur een unieke link naar de relevante contacten.

  • Zij zien steeds een real-time overzicht van alle punten die aan de filter criteria voldoen.

  • Bekijk hier een voorbeeld.

Image

TIP: Je kan deze link bijvoorbeeld bij aanvang van de werf naar externe partijen sturen. Als ze de de link in hun bladwijzer opslaan, kunnen ze steeds real-time alle openstaande opmerkingen raadplegen die jij aan hen toewijst.

Wil je nog een stapje verder gaan? Je kan ook toegewezen partijen uitnodigen om via ArchiSnapper feedback te geven op hun openstaande punten. Lees hier hoe dit werkt.

Vragen? Support@archisnapper.com.

Did you find this article helpful?
Vorige

Wekelijkse automatische e-mail met openstaande punten

Volgende